Κατάσταση Έκταση Τοποθεσία
Υπό κατασκευή 420τ.μ Νέα Πολιτεία, Λάρισα
Κατάσταση Έκταση Τοποθεσία
Υπό κατασκευή 420τ.μ Νέα Πολιτεία, Λάρισα
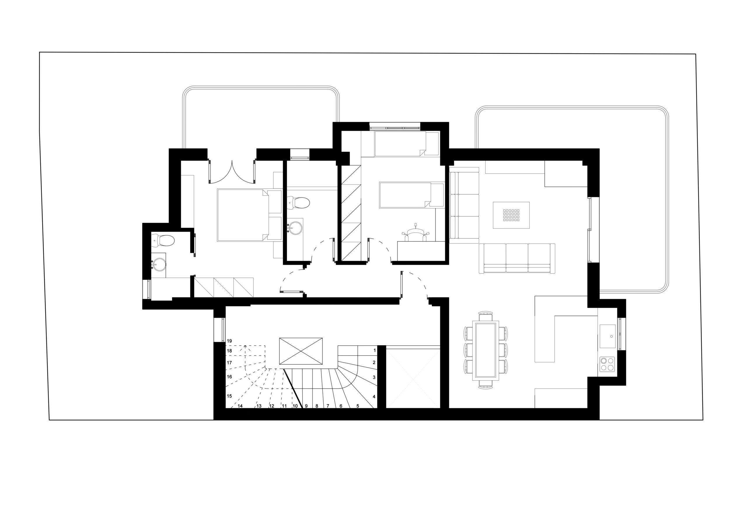
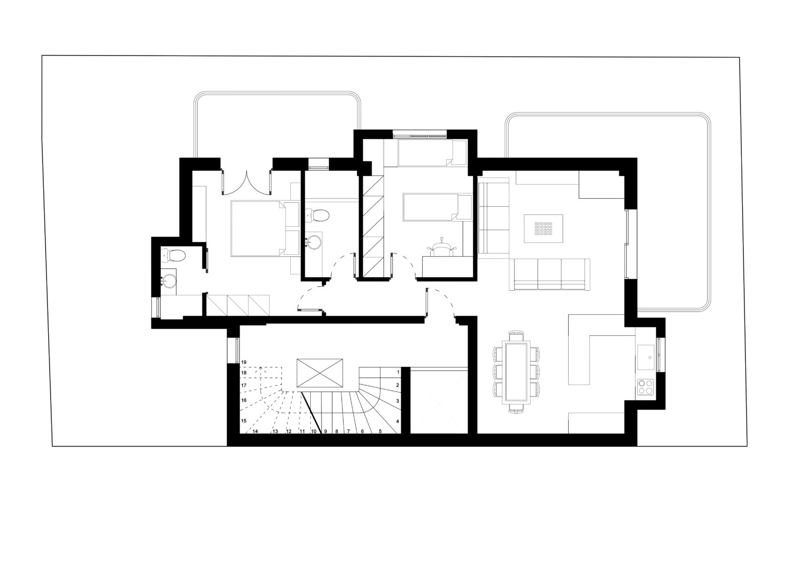
Η πενταόροφη οικοδομή σχεδιάστηκε από το γραφείο μας με γνώμονα τις ανάγκες μιας σύγχρονης οικογένειας και τη δημιουργία ενός περιβάλλοντος κατοίκησης που συνδυάζει λειτουργικότητα, άνεση και αισθητική αρμονία. Το κτήριο αναπτύσσεται σε πέντε επίπεδα, φιλοξενώντας τέσσερα ανεξάρτητα οροφοδιαμερίσματα, ενώ στο υπόγειο προβλέπεται αποθηκευτικός χώρος και στο ισόγειο διαμορφώνονται θέσεις στάθμευσης για τους ενοίκους.
Η γωνιακή θέση του οικοπέδου, απέναντι από την πλατεία της Νέας Πολιτείας, αποτέλεσε βασικό παράγοντα στον αρχιτεκτονικό σχεδιασμό. Η προνομιακή του τοποθέτηση εξασφαλίζει απρόσκοπτη θέα προς τον ανοιχτό δημόσιο χώρο και παράλληλα επιτρέπει τη μέγιστη δυνατή εισροή φυσικού φωτός σε όλους τους κύριους χώρους διημέρευσης.
Η συνθετική προσέγγιση εστίασε στη δημιουργία λειτουργικών και άνετων κατόψεων ενώ ιδιαίτερη μέριμνα δόθηκε στη διαμόρφωση ευρύχωρων καθιστικών με άμεση πρόσβαση σε ηλιόλουστα μπαλκόνια, δημιουργώντας ένα συνεχές διάλογο ανάμεσα στο εσωτερικό και το εξωτερικό περιβάλλον. Στο master bedroom προβλέπεται πλήρως εξοπλισμένο ιδιωτικό μπάνιο, ενισχύοντας την αίσθηση ιδιωτικότητας και άνεσης για το ζευγάρι. Η επιλογή των υλικών βασίζεται σε γήινες αποχρώσεις και φυσικές υφές, δημιουργώντας μια ζεστή, φιλόξενη ατμόσφαιρα που ισορροπεί ανάμεσα στη διαχρονικότητα και τον σύγχρονο χαρακτήρα. Η οικοδομή εντάσσεται αρμονικά στο αστικό της περιβάλλον, διατηρώντας ωστόσο τη δική της ξεκάθαρη αρχιτεκτονική ταυτότητα.